JS PARTNERS
Immobilière
RECHERCHE

Triplex à vendre 4 chambres à Belvaux

  • Type : Triplex
  • Chambres : 4
  • Salle de bain : 1
  • Salle de douche : 1
  • Surface habitable : +/-155 m2
  • Compromis : Oui
  • Prix de vente : 1 139 000 €
  • Année de construction : 2022
  • Disponibilité : à convenir
Contact
Classe énergétique
A
Classe d'isolation thermique A

Description

Belvaux ? Appartement triplex 4 chambres avec jardins, terrasse et garage

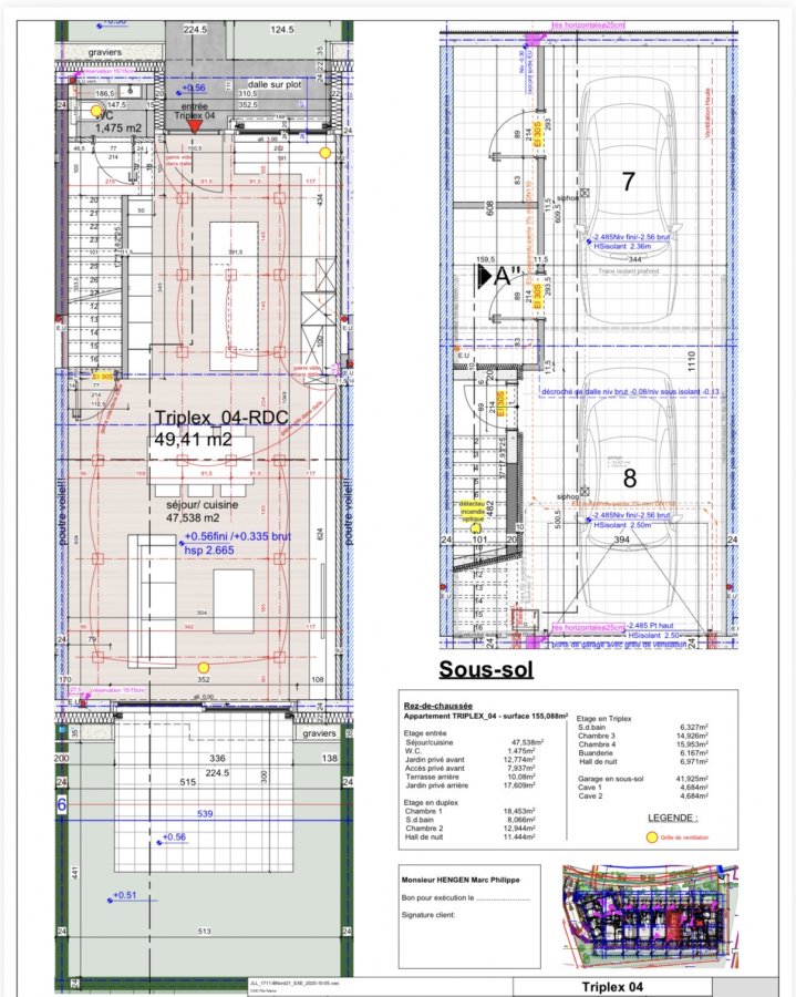
Situé dans un quartier résidentiel calme et recherché de Belvaux (rue Wassertrap), ce superbe appartement triplex offre une surface totale de 155,09 m², idéal pour une famille à la recherche d'espace, de confort et de tranquillité.

Description
Rez-de-chaussée
Vaste espace de vie lumineux de 47,54 m² avec séjour et cuisine ouverte, donnant accès direct aux extérieurs :
- jardin privatif à l'avant avec accès privé,
- terrasse à l'arrière,
- jardin privatif à l'arrière.
WC séparé.

1er étage
- Chambre parentale de 18,45 m²
- Chambre de 12,94 m²
- Salle de bains
- Hall de nuit

2e étage
- Deux chambres de 14,93 m² et 15,95 m²
- Deuxième salle de bains
- Buanderie
- Hall de nuit

Annexes
- Garage fermé de 41,93 m²
- Deux caves privatives

Atouts
- Triplex rare sur le secteur
- 4 chambres / 2 salles de bains
- Espaces extérieurs privatifs (jardins + terrasse)
- Garage et caves
- Quartier calme et résidentiel
- Proche des écoles, commerces, transports et axes routiers

Contact
Moura Jemp
+352 621 216 646

Surfaces et dimensions données à titre indicatif.

Caractéristiques

Intérieur

Non communiqué

Sanitaires

Salle de bain1
Salle de douche1
Toilette séparée1

Extérieur

Terrasse10 m²
Jardin30 m²

Autres

AscenseurOui
CaveOui
Accès pers. handicapéesOui

Contactez-nous

+352 621 216 646
+352

Vous
 
Champs obligatoire
 
 
 
En envoyant ce formulaire, j’accepte que mes informations soient enregistrées puis utilisées par notre agence afin de répondre à ma demande. Consultez notre pour connaître vos droits.
 

Localisation

Rue Waassertrap, L-4408, Belvaux